※あくまで一例です。具体的な建物の内容等についてはお客様と協議して決めていただくことになります。
競合の診療所が少なく診療圏を良好。
隣地にはベルクス新豊四季店(スーパー)もあり認知されやすい。
駅からも近く、バス停も目の前にあるため、患者様の様々な交通手段に対応可能。
※掲載している配棟案は仮計画の為、ご要望に合わせた間取りをご提案可能です。
| 物件No. | 884 |
|---|---|
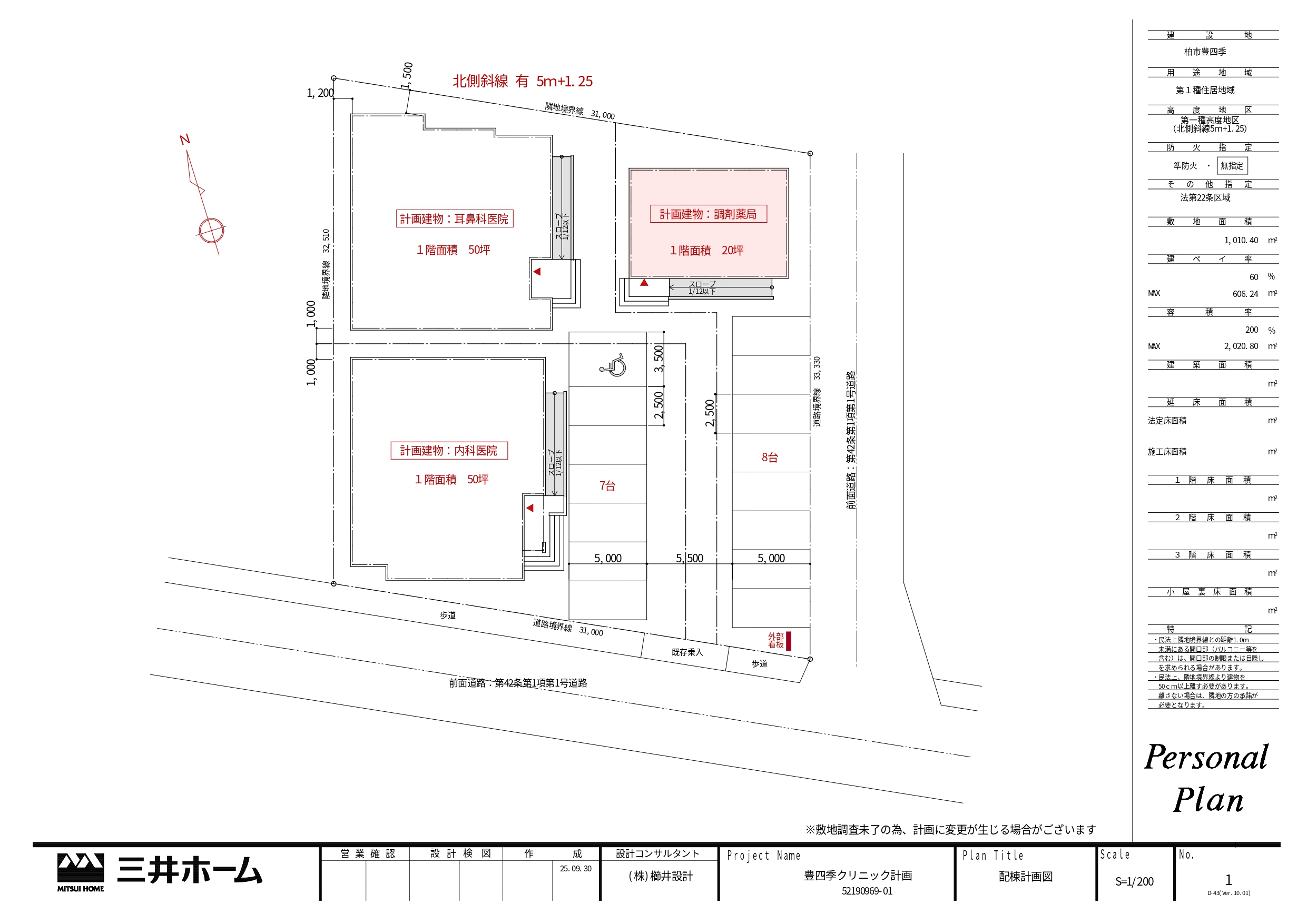
| プロジェクト名 | 豊四季クリニック計画 |
| 都道府県 | 千葉県 |
| 所在地 | 千葉県柏市豊四季135-4 (ベルクス新豊四季店西側) |
| 開業に適した科目 | 内科(160m2) 、 耳鼻科(160m2) 、 整形外科(350m2) 、 眼科(160m2) 、 小児科(160m2) |
| 土地面積 | 1010.4m2 |
