物件情報

神奈川県 座間市相模が丘一丁目計画

小田急 小田原線 小田急相模原 15分以内

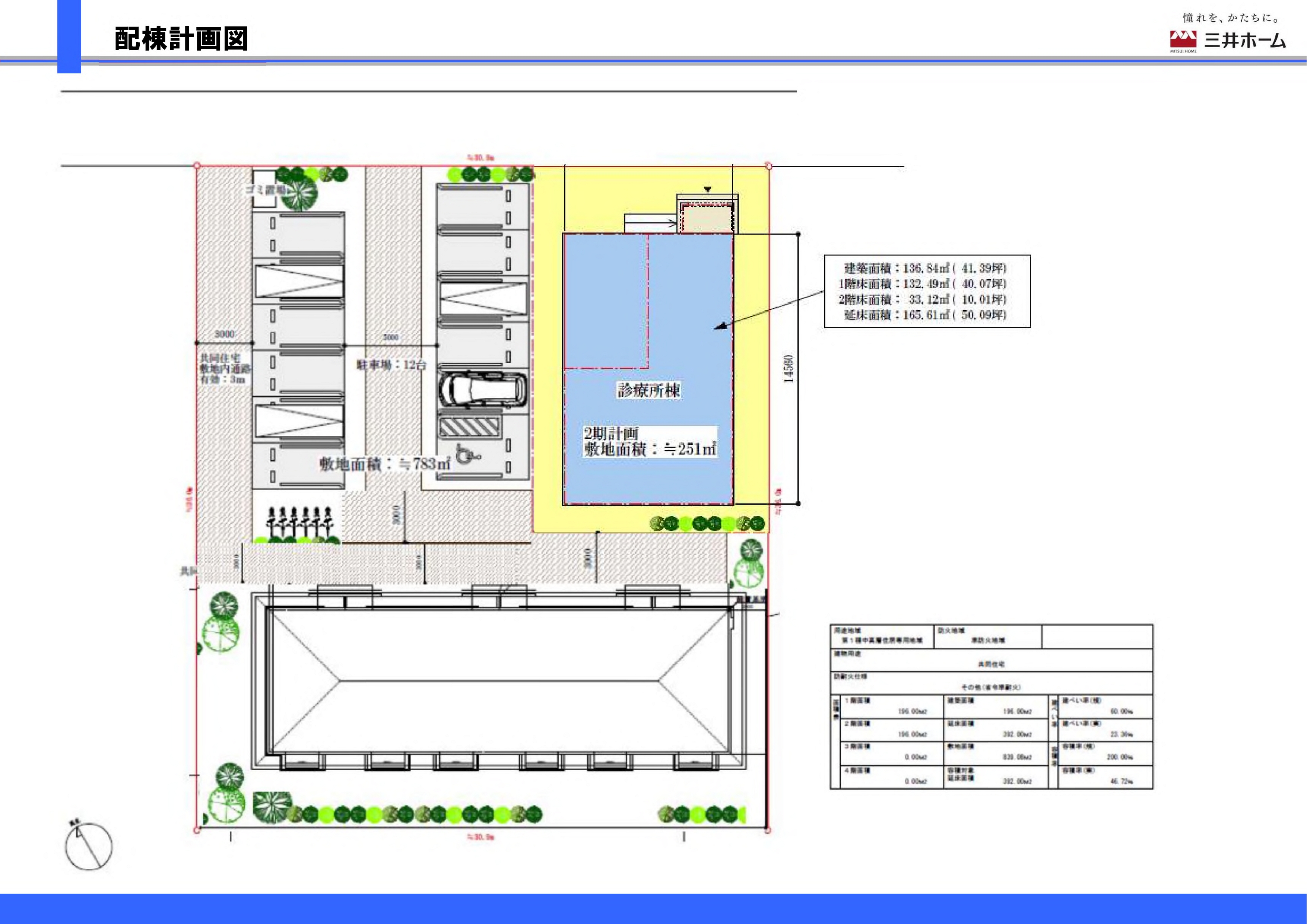
※あくまで一例です。具体的な建物の内容等についてはお客様と協議して決めていただくことになります。

計画敷地の北側隣地の駐車場を患者用として利用することが出来ます。駐車場台数12台まで確保出来ます。

物件No.
878
登録日:
2025.11.10
プロジェクト名
座間市相模が丘一丁目計画
物件形態
戸建て
都道府県
神奈川県
所在地
座間市相模が丘一丁目35番1
交通
小田急 小田原線 小田急相模原駅 徒歩 15分
開業に適した科目
内科、皮膚科、小児科、耳鼻科、眼科、産婦人科、心療内科、泌尿器科、その他
土地面積
1,034.00m2(312坪)
座間市相模が丘一丁目計画
神奈川県座間市相模が丘一丁目35番1
  • ※開業に適した科目の建物面積は、ご希望により変更が可能です。
  • ※「ドクターズレントハウス」として掲載されている情報は弊社が土地所有者等の委託を受けて、その代理人としてご紹介しております。ご紹介している土地上にお医者様のご要望も活かした建物を土地所有者の方が建築し、土地所有者の方を貸主とした建物の賃貸借契約に至るものであって貸地・売地の情報ではありませんので、宅建業法上の物件情報の提供となるものではありません。建物の内容、賃貸借条件等は今後協議していただき決定していくことになります。
  • ※お問い合わせいただいた際に、すでに商談中の場合もございます。予めご了承ください。
  • ※掲載分は情報の一部です。他にもご希望によりご斡旋いたします。
  • ※詳しくは下記までお問い合わせください。

お申し込み

0120-321-665

担当者:源 徹也

この物件に関するお問い合わせ