物件情報

神奈川県 平塚市東真土2丁目ドクターズレントハウス

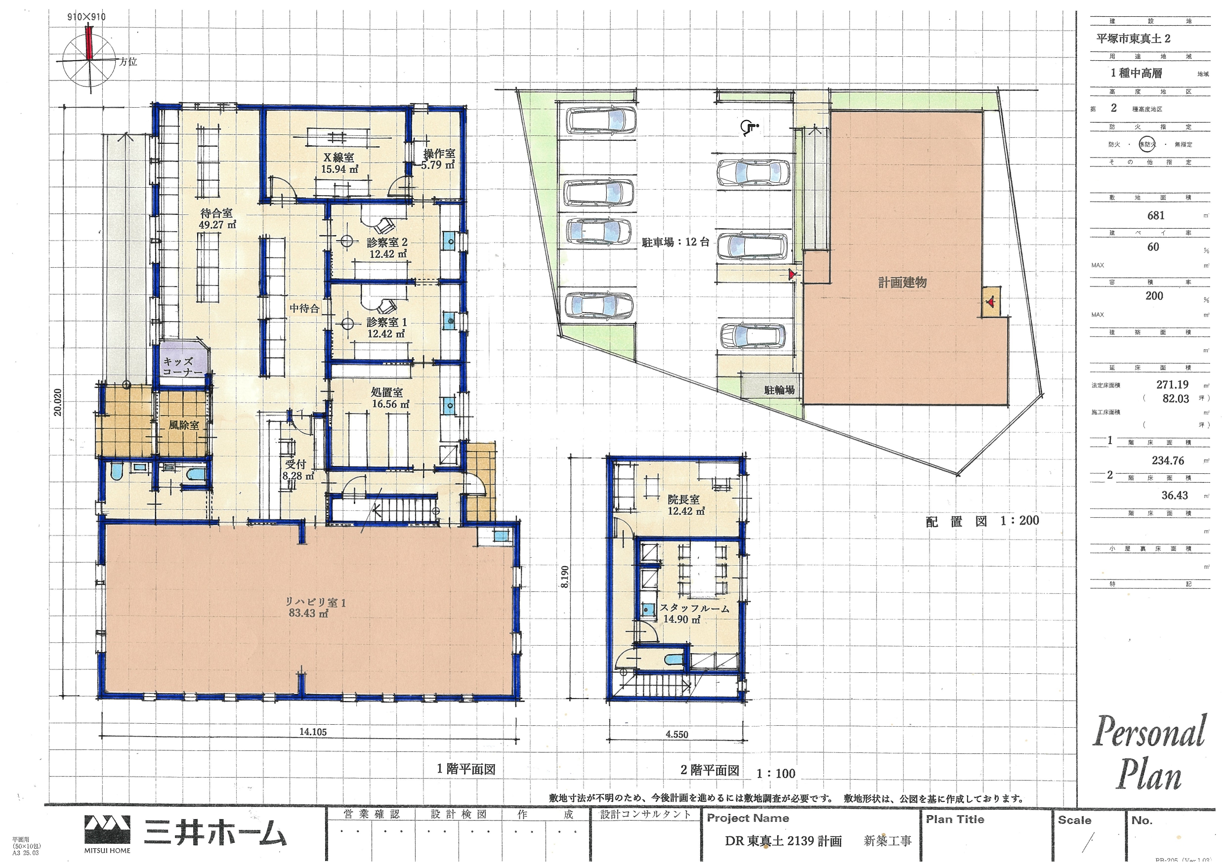
※あくまで一例です。具体的な建物の内容等についてはお客様と協議して決めていただくことになります。

・東海道本線「平塚駅」より車で11分。
・計画地から500mの位置に「真土小学校」があり、分かりやすく視認性の良い立地です。
・ご要望の間取りに変更可能。ご希望通りの診療所が実現できます。
・駐車場12台確保できます。

物件No.
877
登録日:
2025.11.04
プロジェクト名
平塚市東真土2丁目ドクターズレントハウス
物件形態
戸建て
都道府県
神奈川県
所在地
平塚市東真土2丁目19
交通
東海道本線 平塚駅 車 11分
開業に適した科目
全科目
土地面積
681.00m2(206坪)
平塚市東真土2丁目ドクターズレントハウス
神奈川県平塚市東真土2丁目19
  • ※開業に適した科目の建物面積は、ご希望により変更が可能です。
  • ※「ドクターズレントハウス」として掲載されている情報は弊社が土地所有者等の委託を受けて、その代理人としてご紹介しております。ご紹介している土地上にお医者様のご要望も活かした建物を土地所有者の方が建築し、土地所有者の方を貸主とした建物の賃貸借契約に至るものであって貸地・売地の情報ではありませんので、宅建業法上の物件情報の提供となるものではありません。建物の内容、賃貸借条件等は今後協議していただき決定していくことになります。
  • ※お問い合わせいただいた際に、すでに商談中の場合もございます。予めご了承ください。
  • ※掲載分は情報の一部です。他にもご希望によりご斡旋いたします。
  • ※詳しくは下記までお問い合わせください。

お申し込み

080-1631-7958

担当者:坂本 篤

この物件に関するお問い合わせ