物件情報

神奈川県 東大竹ドクターズレントハウス計画

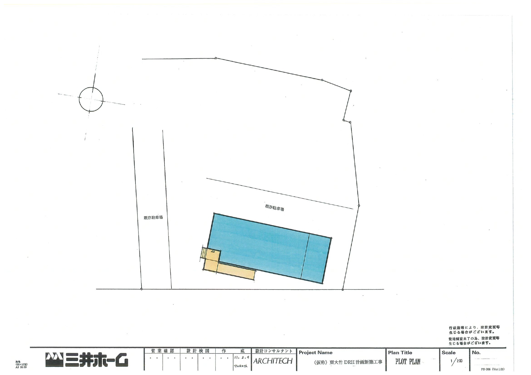
地域住民の生活道路になっています

※あくまで一例です。具体的な建物の内容等についてはお客様と協議して決めていただくことになります。

計画地隣にはじめのクリニック(内科・腎臓内科)開業しています。
調剤薬局併設になっています。
地域住民の生活道路になっています。
バス停目の前です。

物件No.
730
登録日:
2023.08.18
プロジェクト名
東大竹ドクターズレントハウス計画
物件形態
戸建て
都道府県
神奈川県
所在地
伊勢原市東大竹1108-1
交通
小田急小田原線 伊勢原駅 徒歩 11分
開業に適した科目
消化器内科、整形外科、耳鼻科、眼科、婦人科、皮膚科他相談要
土地面積
302.50m2(91坪)
東大竹ドクターズレントハウス計画
神奈川県伊勢原市東大竹1108-1
  • ※開業に適した科目の建物面積は、ご希望により変更が可能です。
  • ※「ドクターズレントハウス」として掲載されている情報は弊社が土地所有者等の委託を受けて、その代理人としてご紹介しております。ご紹介している土地上にお医者様のご要望も活かした建物を土地所有者の方が建築し、土地所有者の方を貸主とした建物の賃貸借契約に至るものであって貸地・売地の情報ではありませんので、宅建業法上の物件情報の提供となるものではありません。建物の内容、賃貸借条件等は今後協議していただき決定していくことになります。
  • ※お問い合わせいただいた際に、すでに商談中の場合もございます。予めご了承ください。
  • ※掲載分は情報の一部です。他にもご希望によりご斡旋いたします。
  • ※詳しくは下記までお問い合わせください。

お申し込み

0120-323-219

担当者:神奈川コンサルティング営業部 浅田

この物件に関するお問い合わせ