エリアサイトTOP
中国 エリア情報
イベント情報
イベント情報詳細
広島市東区山根町(スムストック住宅)|物件内覧お問合せフォーム
戸建住宅
広島県
お申し込みはこちら
枚
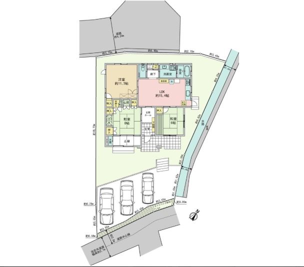
※図面と現況に相違がある場合は現況優先とします。
概要
アクセス
予約・問い合わせ
戻る
広島市東区山根町(スムストック住宅)|物件内覧お問合せフォーム
エリア
[ 広島県 ]
広島市東区山根町のスムストック住宅です。
人気の「平屋」で将来の生活も安心。
広島駅周辺の人気エリア。
お気軽にお問合せくださいませ。
▼物件詳細はこちら▼
https://www.mitsuihome.co.jp/bunjyo/contents/code/detail/8303123
日時
☆随時お問合せ中☆
場所
広島県広島市東区山根町
予約方法
資料請求・物件内覧に関するお問合せは、
「お申し込みはこちら」よりお問合せください。
お申し込み・お問い合わせ
物件に関するお問合せはこちら
TEL: 082-241-2431
担当: 菅脇(スムストック担当)
お申し込みはこちら
イベント情報一覧に戻る